产品类别
周界报警系统(红外对射)防雷设计
周界报警系统(红外对射)防雷设计
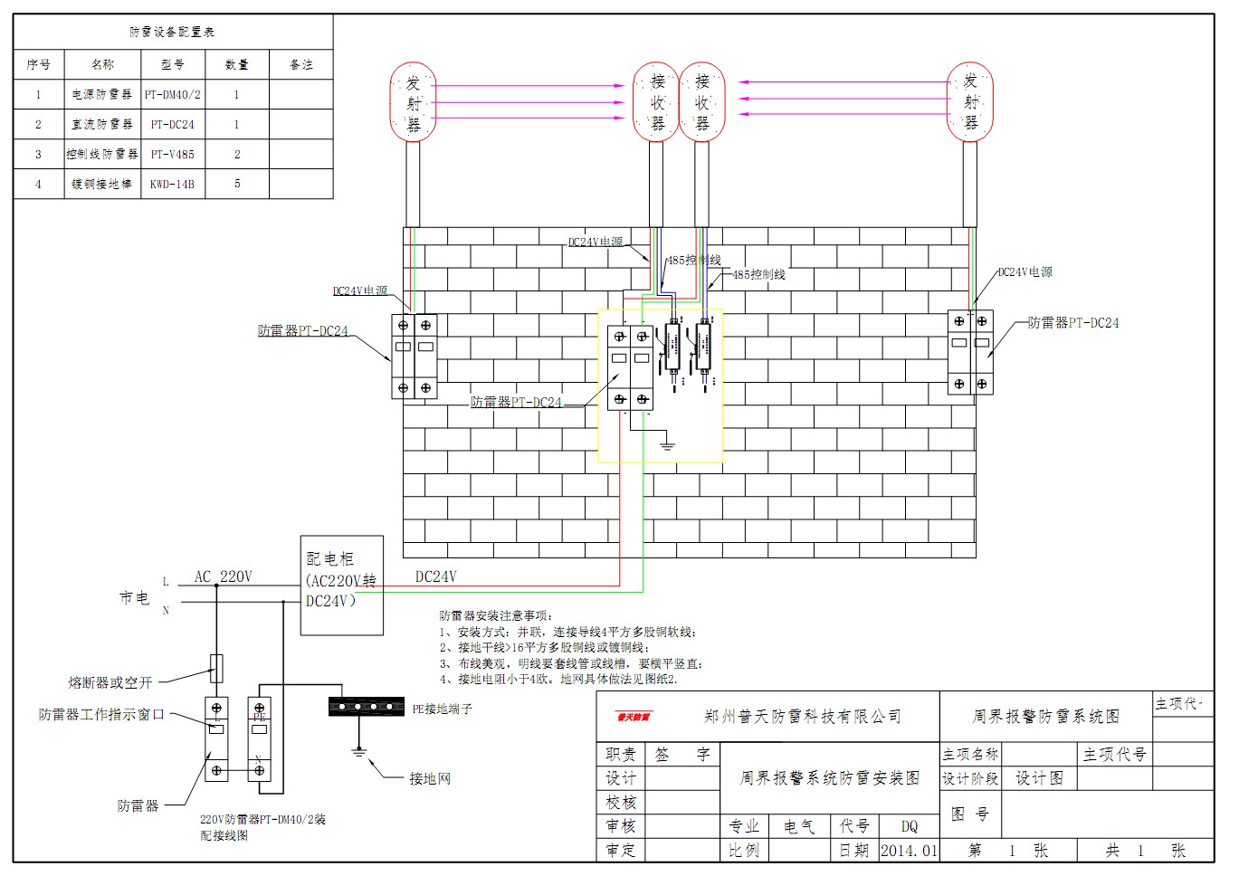
本防雷设计图为红外对射报警系统使用,将本图纸下载保存在本地电脑之后为原尺寸,请下载查看。包含了:电源防雷器、信号防雷器、接地系统等方面,有问题请及时联系我公司:13283889766.

点击图片可以看原始图。
| 上一篇:避雷针安装方法及安装过程下一篇:古建筑物(文物)防雷接地产品工程 |

周界报警系统(红外对射)防雷设计
本防雷设计图为红外对射报警系统使用,将本图纸下载保存在本地电脑之后为原尺寸,请下载查看。包含了:电源防雷器、信号防雷器、接地系统等方面,有问题请及时联系我公司:13283889766.

点击图片可以看原始图。
| 上一篇:避雷针安装方法及安装过程下一篇:古建筑物(文物)防雷接地产品工程 |
凯发·k8国际(中国)首页登录
技术支持: