产品类别
40米避雷针和35米避雷针安装某堆场
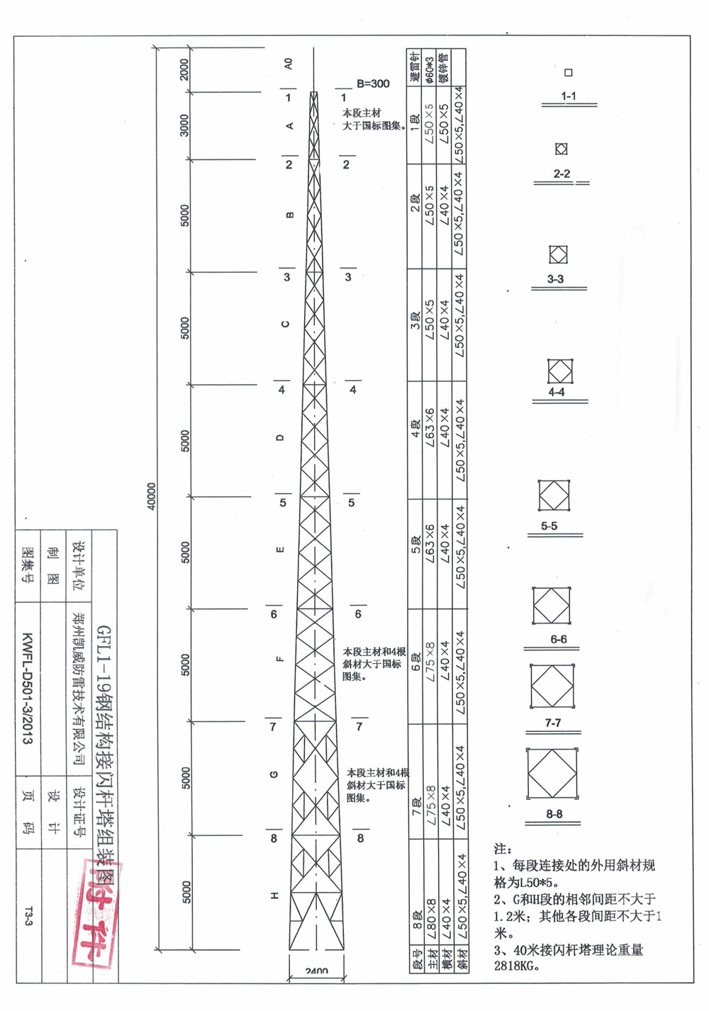
35米和40米GFL1系列避雷针(钢结构接闪杆塔)
一、避雷针型号:GFL1-15(高度35米,基础JB-4)、GFL1-19(高度40米,基础JB-9)。
二、技术要求
钢结构接闪杆塔加工依据是15D501《防雷与接地》接闪杆塔安装的内容要求,基本风压 0.4KN/M2,抗震烈度8度。
钢材选用Q235B材质,整体在凯发k8防雷公司车间内加工,试拼装无误后热镀锌,镀锌厚度要求:厚度3-6mm的工件镀锌厚度不小于70um;其他厚度的工件不小于85um。
主材、斜材、横材、包钢规格尺寸按15D501的规格要求,并采用标准或市场上负偏差最小的材料或大于规范要求的材料;各部件采用M16螺栓连接,包钢采用M16和M20螺栓连接。每个包钢的螺栓数量不少于12个。
接闪杆塔除A段外,每段结构的上下各设置闭合的横材,其中下部的横材要做成内外双“口”交错型结构形式;连接上下两段的斜材(外部)要采用不小于L50*5的规格。塔脚板采用-20*400*400规格,加强筋厚度不小于16mm。
为了减少主材上的打孔数量、增加塔体强度,本次钢结构接闪杆塔不需要脚钉。塔脚板可以在固定到基础之后,塔底主材与塔脚板进行焊接,做好防腐后,二次浇筑混凝土保护,并设散水坡。
40米避雷针(GFL1-19)设计图纸

35米避雷针GFL1-15设计图

对应基础型号:JB-9和JB-4,索取整套详细图纸,请联系我公司售前工程师。
| 上一篇:25米仿生树避雷针下一篇:避雷塔35米钢结构避雷针GFL1-15安装 |











