产品类别
福建高速养护基地沥青搅拌站项目通过气象主管机构验收
福建高速养护基地沥青搅拌站项目通过气象主管机构验收
由郑州凯发k8防雷科技有限公司设计、施工的福建高速养护基地的两个沥青搅拌站综合防雷系统保护项目相继通过当地气象主管机构的防雷验收,取得《防雷装置安全性能检测报告》。
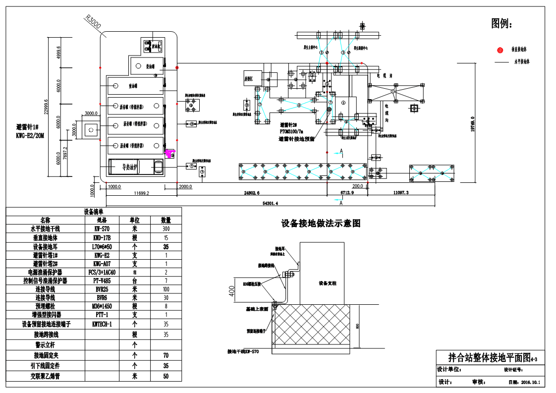
项目概况:GH独立式接闪杆安装、设备专用接闪杆安装、大型综合接地网格敷设、设备接地等电位、电气设备浪涌保护器安装等内容。
在此感谢业主单位的大力支持,感谢主管机构的热情服务,感谢协作单位的鼎力配合,两个沥青搅拌站防雷项目顺利完工。
设计图纸:

避雷接闪杆安装图:

| 上一篇:屋面型12米接闪杆塔(避雷针塔)安装图下一篇:城市燃气门站避雷针(接闪杆塔)安装 |











